Cabin trạm thu phí không dừng VR1400
VINACABIN VR1400 – cabin thu phí Model 2026, thân composite đúc nguyên khối, bền hơn 50%, cửa kính cường lực, bàn Polywood An Cường, điện âm tường, thiết kế hiện đại, chống thấm – giải pháp bền vững cho trạm thu phí và hạ tầng giao thông.

Cabin thu phí cao tốc VR1400
Sử dụng vật liệu composite chất lượng cao cả bên trong và bên ngoài.
Bề mặt gelcoat bên trong phủ thêm lớp sơn PU cao cấp bên ngoài để chống tia UV và cho màu sắc tươi mới trong thời gian dài
Đúc nguyên khối vững chắc.
Chịu lực tác động đa chiều
Hệ thống cửa sổ và cửa chính khung nhôm Xingfa nhập khẩu và kính cường lực 8mm
Bàn làm việc gỗ Polywood chịu nước An Cường
Hệ thống thông gió, chiếu sáng, điện chờ điều hoà, ổ cắm, atomat an toàn..
Thông số kỹ thuật Cabin trạm thu phí không dừng VR1400
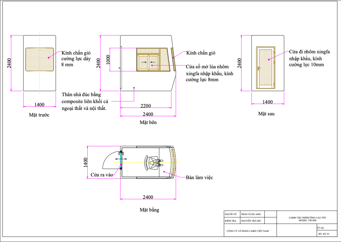
Bản vẽ kỹ thuật Cabin thu phí không dừng Vinacabin VR1400

Bản vẽ cabin trạm thu phí không dừng Vinacabin VR1400
THÔNG SỐ KỸ THUẬT CABIN THU PHÍ VINACABIN VR1400
Kích thước tổng thể: dài x rộng x cao (mm)
2400 x 1400 x 2400
Kích thước thông thuỷ : dài x rộng x cao (mm)
2300 x 1300 x 2200
TRANG THIẾT BỊ ĐI KÈM.
01 bàn làm việc bằng gỗ polywood An Cường có 2 ngăn kéo.
Cửa sổ nhôm Xingfa, kính cường lực 8mm
Cửa chính: Khung nhôm Xingfa kính cường lực 8mm
Kính cong phía trước: Kính cường lực 8mm
04 đèn Dowlight bên trong, 01 quạt thông gió, 03 ổ cắm đôi, 01 atomat tổng, hệ thống điện chờ điều hoà. Toàn bộ dây dẫn và các thiết bị điện âm tường.
Thân vỏ: Composite (FRP) đúc liền khối
Nội thất: Composite (FRP)đúc liền khối.
Màu sắc Xanh – Trắng hoặc sản xuất theo yêu cầu.

Cabin thu phí đường cao tốc

Trần cabin

Cứa sổ bên phải

Cửa sổ trái

Bàn làm việc và nội thất

Cabin bán vé VR1400

Cabin bán vé và thu phí cầu đường bộ Vinacabin VR1400



